在设计界,一直有一句话是“少即是多”。生活是复杂的,同时是简单的,只是人们常常习惯性把简单的事情弄复杂了。在今天,少即是多仍然风靡全球。
这种“少”不是绝对意义上的克制欲望,而是脱离无意义的装饰,回归真实生活需求。它对标一种国际化的生活方式,一种奉行极简、高效理念的高品质生活。
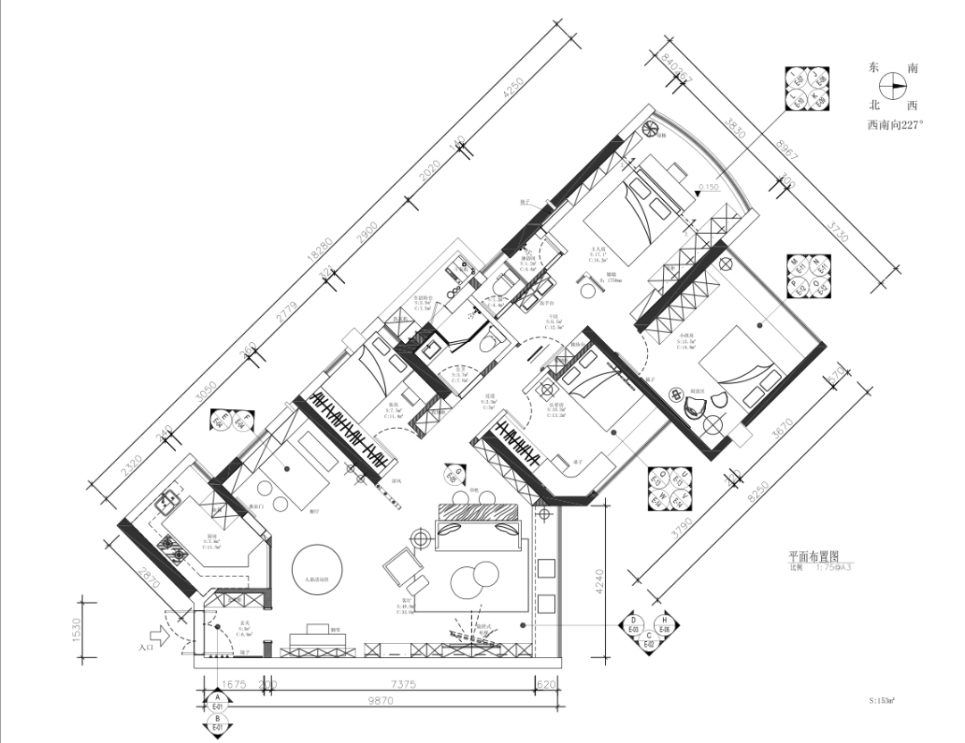
整案分析
户型面积:153m²
类型:大平层
区域分配:入户区· 客厅·餐厅· 客房 ·长辈房 ·主人房 ·小孩房
入 户
入户空间较小,且房型异型,根据设计方案采用白色哑光系列,整体感觉令人清新自然。格局方面柜子范围内包含了两个电箱,同时根据与业主沟通,对鞋柜的收纳要求是多放鞋。业主夫妻多以休闲舒适鞋类为准,所以对鞋的隔板高度做了精确计算。以多放鞋为原则。按目前的设计计算,该鞋柜可收纳鞋 25-30双。左侧区域以矮柜形式呈现,进出门换鞋方便。侧板位置配置壁挂配件,雨伞,外套整齐归纳。
客厅|钢琴吊柜
根据设计方案,我们采用色彩很正的爱马仕橙,冰极绿,柠檬黄,天使白、天空蓝的颜色完成13个吊柜组合。整个吊柜在客厅中起到了非常精彩的点睛作用。让房间充满活力。13这个数字代表一生,也祝愿业主夫妻在五彩缤纷的生活中谱写美妙的一生。我们将吊柜取名叫“一生所爱”。
客厅|电视柜组合
电视柜采用满墙的设计风格,原木色和经典白色的组合是亘古不变的经典。是当下最流行的极简风格。内部格局具备非常强大的收纳功能,满足的整个家庭从艺术品到基本家用工具的收纳需求。右侧开放柜面向钢琴,提供了很好的曲谱等书籍的收纳。正面开放格我们采用铝合金抗弯条,使用寿命大大增加,加上灯光效果的使用,使整个空间充满了设计的灵魂。
电视柜下柜和飘窗采用同色材质,完美的结合在一起,对客厅空间起到了非常好的延伸,视觉上增大了空间面积。取消了原先方案的玻璃,美观上有所打折,但在安全因素上增加了保障。
客厅·书柜
书柜采用半开放设计,对于物品的摆放及收纳非常明确。门板颜色与电视柜门板颜色相呼应,整洁大方。客厅属于斜边型,书柜朝向钢琴区域,我们将柜内柜的颜色与钢琴吊柜“一生所爱”的颜色相呼应。形成完美的配合。
餐厅柜
餐厅的设计在主要与收纳为主,一排整齐划一的抽屉让餐具物品分类明确。后期在抽面上贴上物品小便签就更好好用了。台面采用石英石台面。起到防水防潮的作用。更加坚固耐用。台面上对于电饭煲,高压锅的放置,完全不是问题。
储物柜
储物柜的设计在主要与收纳为主,且里面采用活动层板配置,使柜子更加灵活变通,可满足各种不同物品的摆放。
客房
根据业主对收纳空间的需求,客房会以保姆或客人使用居多。所以客户更多具备收纳功能。榻榻米的运用是对于收纳非常好的解决方案。衣柜部分除了衣物的收纳。业主更是非常细致的提出对于全家人行李箱的归放。这样就不用每个柜子内留出行李箱的位置,使其他空间的柜子更加充分利用。书桌部分采用简洁的隔板处理,实用大方。
长辈房
长辈房的风格与客房风格一直,采用简洁的白色烤漆系列。门板采用暗拉手风格,杜绝了一切安全隐患。衣柜与书柜通过满墙的设计,把房型不规则部分隐藏起来。整体感大增。
储物柜
储物柜斗柜和平开门的组合设计,免拉手的平面整体感和美观度都俱佳。中间镂空部分对于随放随拿的物品非常方便。
小孩房
目前小孩房衣柜的目前功能主要以补充主人房收纳使用。且设计相对中性,相对满足和平衡未来的收纳需求。
主人房
主人房的设计是通过3个组合柜完成。首先衣柜部分因为有台阶,我们通过中间玻璃门的运用做了很好的分隔和过渡。床头柜的功能非常强大。床边柜能够满足多余物品的储存。





